Продается 2-х комн. квартира, 62.7 кв.м., 4/10 эт

Обзор
Стоимость
6 050 000
РемонтТребуется ремонт
Балкон2 лоджии
Онлайн показмогу провести
Статус Недвижимости АвитоКвартира
Право собственностиПосредник
Тип парковкиОткрытая во дворе
Способ связи avitoПо телефону и в сообщениях
Тип дома cianКирпичный
Комнат в квартире2
Площадь, кв.м.62.7
Жилая площадь35
Площадь кухни, кв.м.10.7
Этаж4
Этажность10
Материал стен Кирпич
Адрес
Населенный пунктКалуга
Район городаСиликатный
Улицаулица Гурьянова
Номер дома67к2
В избранное Продаётся 2-комнатная квартира

Свободная продажа просторной двухкомнатной квартиры с двумя лоджиями.
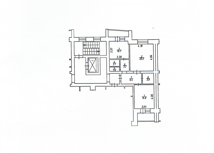
Кирпичный дом 2008 года. Общая площадь 62,7 кв.м, кухня 10,7 кв.м, комнаты 20,2 + 14,8 кв.м, прихожая 6,4 кв.м, коридор 3,2 кв.м, кладовая 1,4 кв.м, ванная комната 3,2 кв.м, туалет 2,1 кв.м, лоджии 4,3 + 4,1 кв.м.
Коммунальные платежи полностью (без интернета) летом до 4500 руб, зимой до 8000 руб.
Один взрослый собственник с 2022 года. Квартира без обременений, прописанных нет.
Ул. Гурьянова д.67 корпус 2.

№ 17487

Расположение

Важно! На карте не всегда указано точное местоположение. Более точную информацию можно узнать у менеджера, разместившего объект