Продается 2-х комн. квартира, 67.1 кв.м., 2/9 эт

Обзор
Стоимость
7 150 000
РемонтEвроремонт
БалконЛоджия застекленная
Онлайн показмогу провести
Статус Недвижимости АвитоКвартира
Право собственностиПосредник
Тип парковкиЗа шлагбаумом во дворе
Способ связи avitoПо телефону и в сообщениях
Тип дома cianКирпичный
Комнат в квартире2
Площадь, кв.м.67.1
Жилая площадь34.7
Площадь кухни, кв.м.11.6
Этаж2
Этажность9
Материал стен Кирпич
Адрес
Населенный пунктКалуга
Район города30-й микрорайон
Улицаулица Кубяка
Номер дома9к5
В избранное Продаётся 2-комнатная квартира

Просторная двухкомнатная квартира в кирпичном доме с автономным отоплением.
Хорошее состояние квартиры (не требует срочных вложений).
Соседи добропорядочные, не доставляют никаких неудобств.
Закрытая территория с заездом/выездом с двух сторон.
_________________________________________
• большие изолированные комнаты
• просторные прихожая и кухня
• автономное отопление
• оборудованная гардеробная 5 кв.м
• средний этаж
• застеклённая лоджия
• окна на обе стороны
• сделана тепло и шумоизоляция с внешей стороны комнат
• два лифта
• удобная инфраструктура со всем необходимым
• остаётся кухонный гарнитур, встроенная поверхность и духовой шкаф, вытяжка, посудомойка, прихожая.
_________________________________________
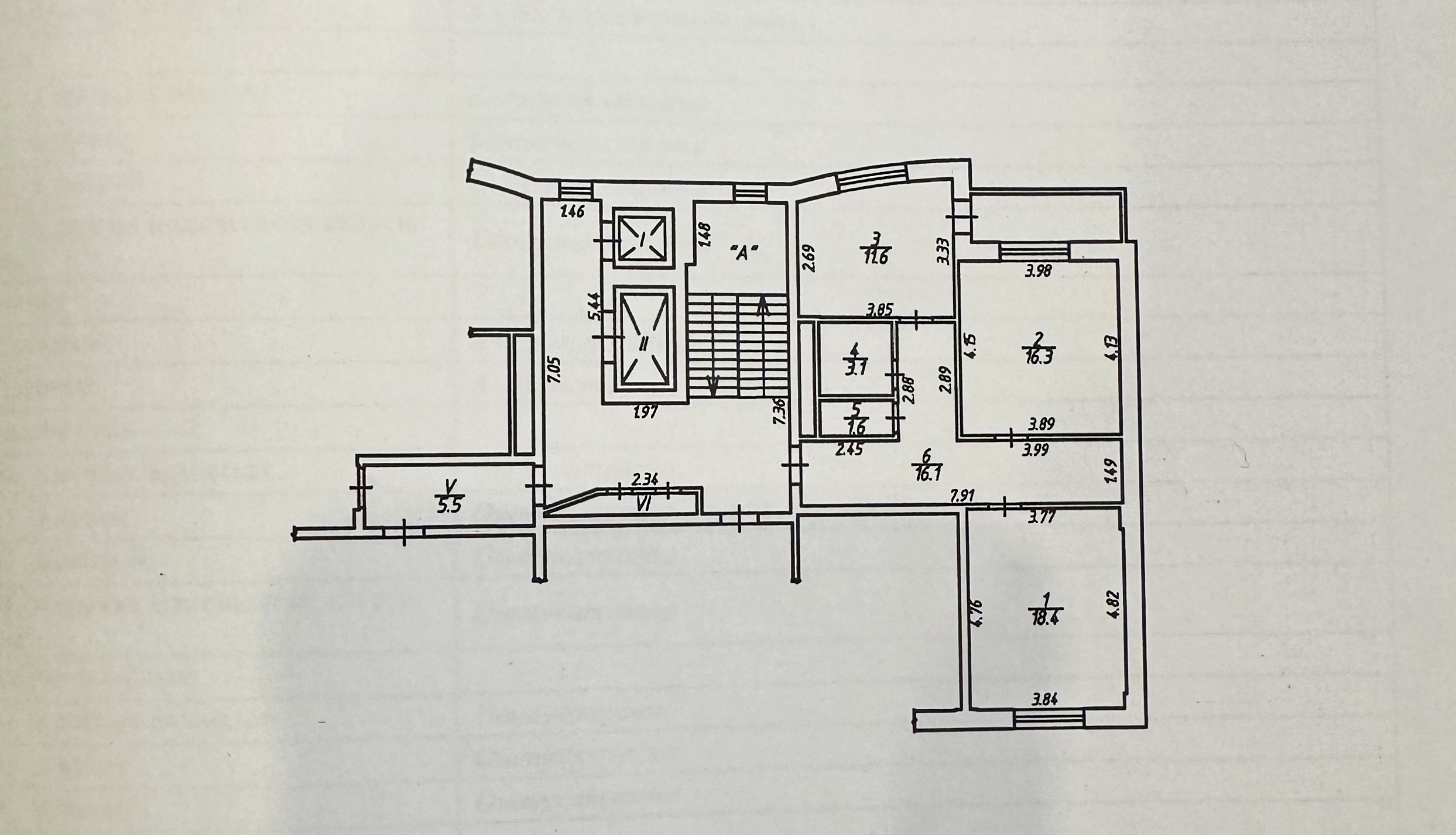
Кирпичный дом 2011 года, общая площадь 67,1 кв.м, кухня 11,6 кв.м, комнаты 18,4 + 16,3 кв.м, прихожая 16,1 кв.м, ванная 3,1 кв.м, туалет 1,6 кв.м, лоджия 4,4 кв.м (не входит в общую площадь).
Коммунальные платежи полностью (без интернета) летом до 4000 руб, зимой до 7200 руб.
Без обременений и занижений, альтернативная продажа с участием органов опеки (есть куда).
Ул. Кубяка 9к5.
 

Расположение

Важно! На карте не всегда указано точное местоположение. Более точную информацию можно узнать у менеджера, разместившего объект