Продается 3-х комн. квартира, 66.1 кв.м., 7/9 эт
Обзор№ - 17073
| Стоимость | 4 600 000 |
|---|---|
| Ремонт | Требуется ремонт |
| Балкон | Лоджия застекленная |
| Статус Недвижимости Авито | Квартира |
| Тип парковки | Открытая во дворе |
| Способ связи avito | По телефону и в сообщениях |
| Комнат в квартире | 3 |
| Площадь, кв.м. | 66.1 |
| Жилая площадь | 40.7 |
| Площадь кухни, кв.м. | 8.6 |
| Этаж | 7 |
| Этажность | 9 |
| Материал стен | Панельный |
Адрес
| Населенный пункт | Калуга |
|---|---|
| Район города | Площадь Победы |
| Улица | улица Чижевского |
| Номер дома | 25 |
В избранное Продаётся 3-комнатная квартира
ПРЯМОЙ ПРЕДСТАВИТЕЛЬ СОБСТВЕННИКА, альтернативная продажа.
Трёхкомнатная квартира с изолированными комнатами в районе Площади Победы.
Практически вся мебель и техника остаётся. Сан.узел раздельный, средний этаж.
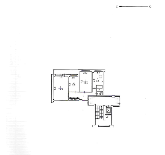
Панельный дом 1982 года. Общая площадь 63,6 кв.м (без учёта лоджии), кухня 8,6 кв.м, комнаты 17,9 + 13,5 + 9,3 кв.м, лоджия 5 кв.м, прихожая с коридором 9,9 кв.м, ванная 2 кв.м, туалет 1,2 кв.м.
Два взрослых собственника с 2010 года. Без обременений. Сделка с участием органов опеки.
Улица Чижевского д.25.





















































